室內設計師必備的「12500 乙級建築物室內設計證照」
你想進入室內設計領域、成為室內設計師,那你一定要考取「12500 乙級建築物室內設計證照」!
它是應徵室內設計師與相關職業的基本敲門磚,不僅可證明你已具備室內設計基本常識的最佳利器,也是未來成立室內設計公司必要的條件之一。
此外,室內裝修的需求與日俱增,無論是商業空間、店舖的改換租約,或是居家的舊屋翻新,又或是新家的設計規劃,還有展覽空間、展售中心、小吧台、租屋裝修、政府標案等空間設計,室內設計的能力都能派上用場!因此,考取室內設計證照不僅能證明自己實力,也將讓你的職涯更加多元與開闊。
有鑑於此,本課程特別為對室內設計感興趣,且未來想考「12500 乙級建築物室內設計」證照的同學們設計,教你基礎的平立面、天花板圖的畫法,並透露最容易扣分的眉眉角角,助你打好基礎!
有了堅實的基礎後你還可以持續進修,結合巨匠「基本圖學-室內設計課程」、「室內設計實務班」課程來打好室內設計師基礎能力;或是結合「3ds Max 室內設計」、「SketchUp 室內設計實戰養成班」、「AutoCAD 室內設計」課程,進而強化室內設計電腦繪圖能力;更可結合「系統櫃」、「人體工學」、「室內設計風格實務」課程,全面提升其他相關的室內設計技巧。
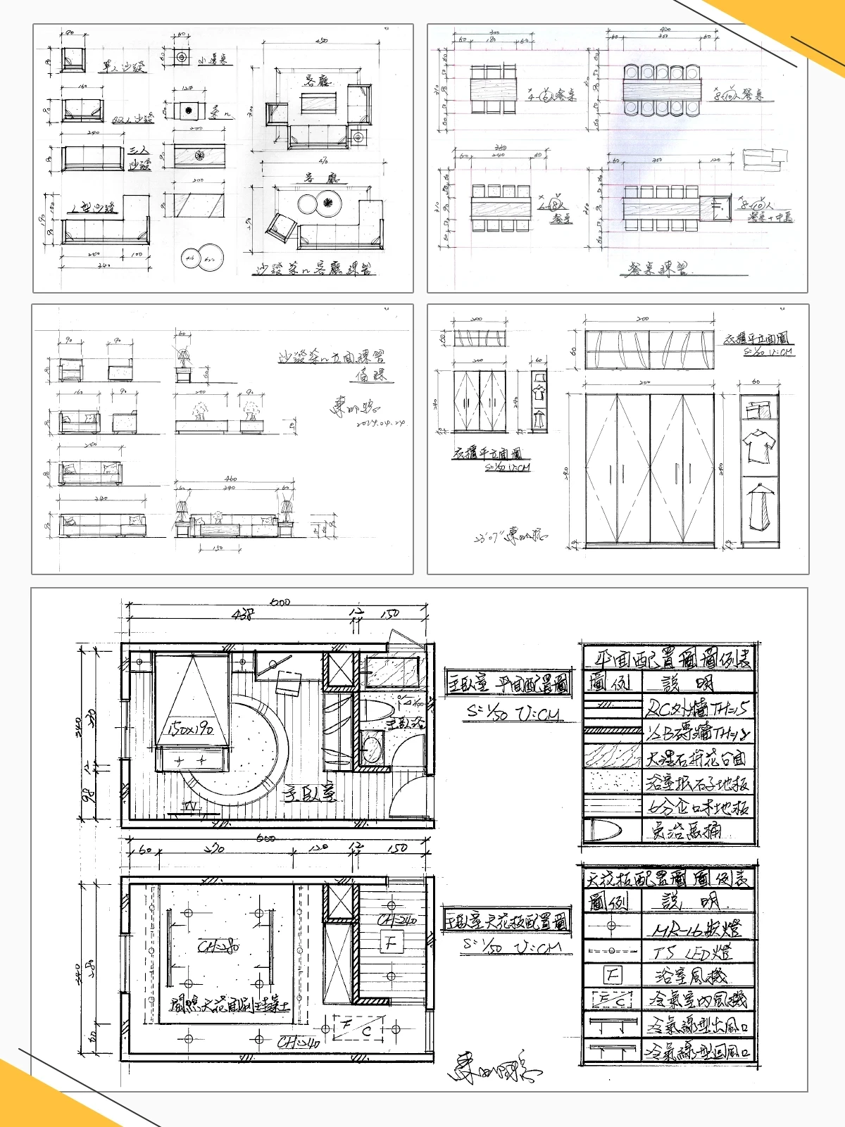
掌握室內設計的手繪基本功,隨時畫下設計靈感
手繪是室內設計基本功,若能掌握手繪室內設計平立面圖的技巧,你就能夠隨時畫下設計靈感,並能與工班或客戶輕鬆溝通想法,像是在與客戶的討論會談上若是需要現場改圖與調整,即可立刻展現出個人的專業實力。
因此,本課程培養你室內設計平立面圖的手繪能力,只要依循著教學步驟,從基本線條開始,一步步完成專業的完整平立面圖吧。
課堂上,老師將分享自身室內設計考照與實務的經驗,讓你更了解這塊領域。教學內容涵蓋了室內設計中的空間配置原則、三視圖概念,以及對於室內設計實務的認識,帶你從零開始學如何畫出基礎室內元件,進而完成室內空間平面圖、各向立面圖等室內系統套圖的繪製。
此外,還會提供好記的口訣,像是廚房配置順序的口訣「冰、洗、切、煮」,讓你輕鬆記憶,快樂學習無負擔。
上完課,你就能擁有手繪室內製圖的能力,並具備圖面整合與平面立體的概念!
2 次作業,透過專業評圖讓你徹底了解己身誤區
只要報名上課,便可將作業寄給老師批改,獲得超專業的建議!
上課的同學可郵寄 2 次 A2 以上的紙本大圖給老師(郵資同學負擔),老師批改後會將作品寄回給同學(寄回的郵資講師負擔)。透過實際的作業往來與批改,你可從中獲得經驗與專業建議,走出個人盲區與誤區,掌握最貼近實務的室內設計繪圖方法。
專精室內設計領域的王光祺老師與陳明聰老師
王光祺老師從事室內設計工作已超過 20 年,擁有 3ds Max 2016 認證、AutoCAD 2015 認證、室內設計乙級證照、室內裝修乙級證照等多項專業證照,並擔任多家室內設計公司的 3D 技術顧問,以及藝術總監,業界經驗相當豐富。
上課時,以紮實的教學與幽默的談吐而深受學生喜愛,是室內設計領域相關課程的重量級講師!
陳明聰老師是巨匠學員出身,投入室內設計、建築以及動畫廣告產業已逾十年,擁有許多與知名建築公司、代銷公司以及室內設計公司合作的實務經驗,目前從事室內設計行業擔任設計師,並同時兼任巨匠電腦講師,專長領域為室內設計實務、3ds MAX 和手繪圖,並以業界現行實務經驗代入教學。
![]()
課程觀看期限到你考上證照為止,且之後還會有相關的進階系列課程,快加入學習,踏出考「12500 乙級建築物室內設計證照」的第一步吧!